x

Le cabinet CHARDOT réalise de nombreux travaux architecturaux tels que les relevés de bâtiments (intérieurs ou extérieurs) et dresse les plans de façades/élévations, intérieurs, coupes, toitures et héberges pour tous types de bâtiments (Immeubles, Collèges, site industriels…) à partir des données en 3D acquises grâce à notre scanner 3D. 


Plans d'intérieur : Les plans d'intérieur sont indispensables à la vente, la location, la mise en copropriété 

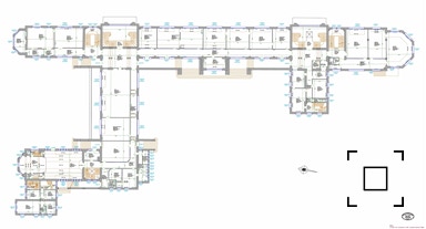
Plans d'architecture : Nous pouvons établir des plans d'intérieur détaillés, indispensables à la réhabilitation ou rénovation d'un bâtiment. Nous y consignons de nombreux détails : équipements fixes (éviers, appareils sanitaires, radiateurs, cheminées), sens d'ouverture des portes, affectation des locaux, colonnes d'alimentation et d'évacuation... 

Plans de façade/Elévation : Le plan d'une façade positionne tous les éléments de celle-ci (ouvertures, faîtages, acrotères, bandeaux ...) 

Plan des Héberges : Ces plans sont nécessaires aux études de construction en limites séparatives ou à l'établissement d'un décompte de mitoyenneté.

© Copyright Chardot 2020